Petits-Nids

Immeuble de 24 appartements à Neder-over-Heembeek.

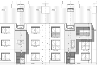
Construction d'un immeuble de 24 appartements Donderberg 27, 29, 31 et 33 à 1020 - BRUXELLES.

4 Vents

Rénovation d'un immeuble de 16 appartements existants en 10 nouveaux appartements à MOLENBEEK-SAINT-JEAN.
Maître de l'ouvrage : commune de MOLENBEEK-SAINT-JEAN

>> PDF

Rue de Soignies

Concours pour la construction d'un immeuble de 6 appartements et d'un local associatif à BRUXELLES.
Maître de l'ouvrage : Le Foyer Bruxellois

>> PDF

Quai du Hainaut

Etude de potentialité d'affectation d'un immeuble à MOLENBEEK-SAINT-JEAN.
Maître de l'ouvrage : Régie Foncière de la Région de Bruxelles-Capitale Bruxelles mobilité - AED

>> PDF

Itterbeek

Construction d'un immeuble de 10 appartements à ANDERLECHT.
Maître de l'ouvrage : Vermeersch Construct

>> PDF

Aniko

Construction d'un immeuble à appartements à 1120 BRUXELLES.
Promoteur : CAMAG sprl

>> PDF

Koekelberg

Construction d'un immeuble de 4 appartements à KOEKELBERG.
Maître de l'ouvrage : Monsieur Mottet

>> PDF

SX

Construction d'un immeuble de 12 appartements à RUISBROECK.
Maître de l'ouvrage : SX sprl

>> PDF